Efficience Architectures


Construction d'une salle multisport à ROCHEFORT-SUR-NENON


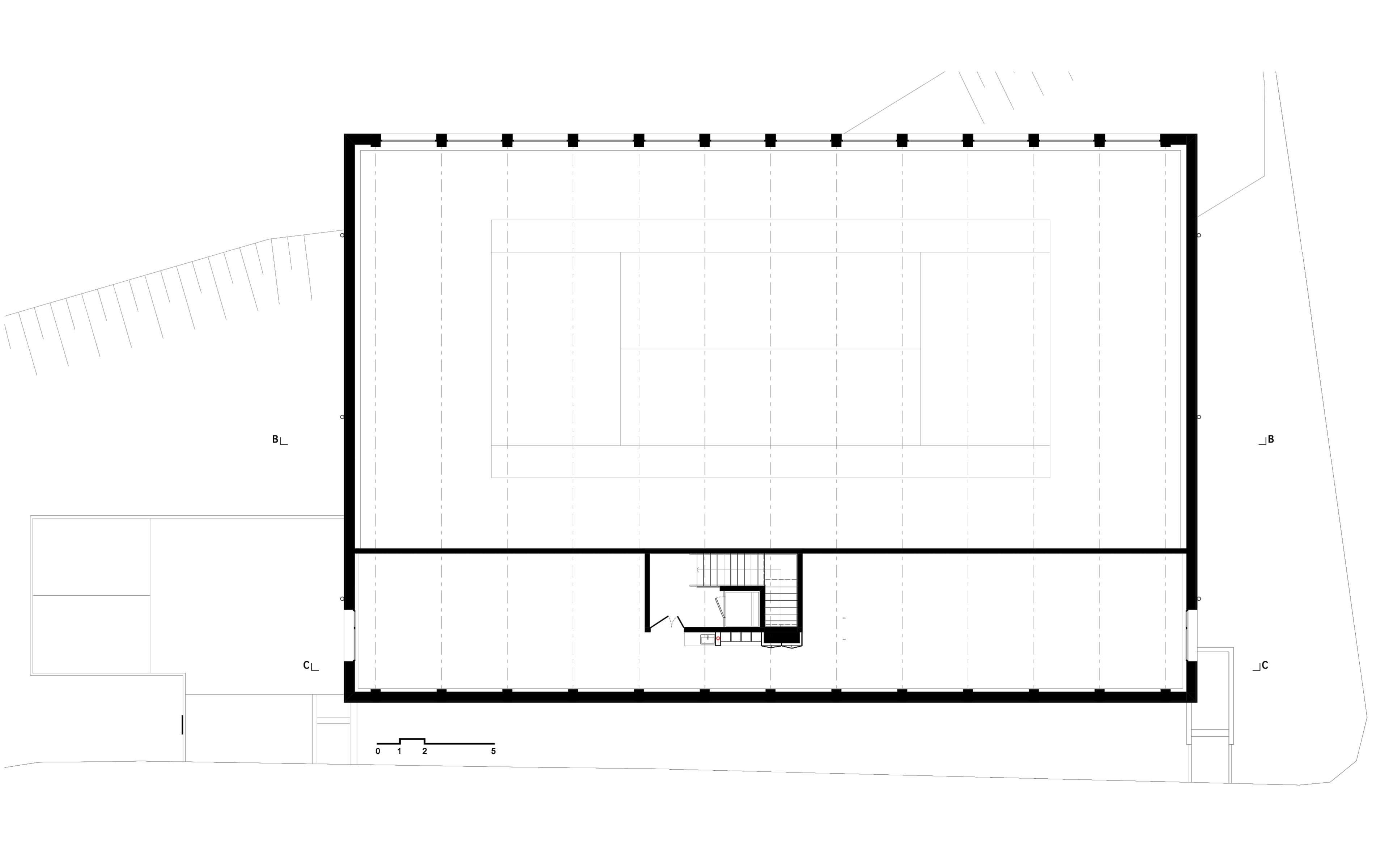
Maître d’ouvrage : Communauté d’agglomération du Grand DOLE, Bet électrique : FERMI, BET chauffage : Conseil Energie Thermique, BET Structures : Bresse Plans Structure, Economie de la construction : Broissiat-Dequecker, Suivi de chantier : Catherine Bouhand #OPC, Coût des travaux : 1 100 000.00 € HT, Surface :?1 000,00 m2, Photographe: Nicolas Waltefaugle

Entreprises : Lot 01 – Terrassement - VRD : SAS SLTP, Lot 02 – Renforcement du terrain : KELLER FONDATIONS SPECIALES, Lot 03 – Gros œuvre : SAS DAMIN, Lot 04 –Charpente bois – bardage : EURL MONAMY, Lot 06 – Menuiseries - extérieures aluminium - métallerie : PEGUILLET SARL, Lot 07 – Menuiseries intérieures : L’ATELIER DE LA MENUISERIE, Lot 08 – Doublages – cloisons – peinture : SARL FILIPPI, Lot 09 – Revêtement de sols sportifs : REALSPORT France, Lot 10 – Elévateur : MYD’L, Lot 11 – Plomberie – sanitaires : MOLIN SAS, Lot 12 – Electricité : SARL EJE, Lot 13 –Chauffage – ventilation : MOLIN SAS