Efficience Architectures


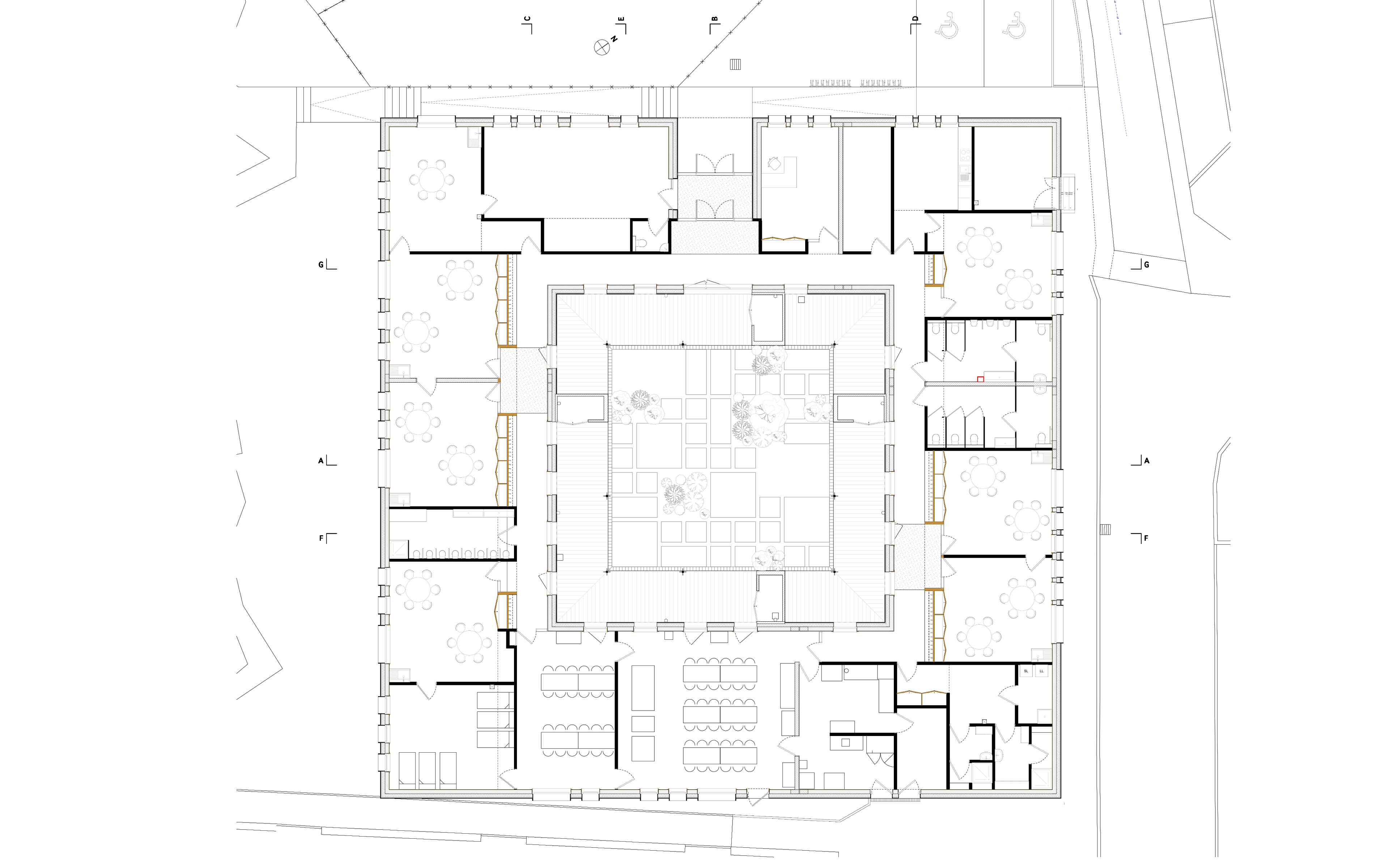
Construction d’un ALSH à Authume


Maître d’ouvrage : Communauté d’agglomération du Grand DOLE, Architecte : Mickaël Deseille, Economie de la construction / DET OPC : Broissiat-Dequecker, Bet électrique : FERMI, BET chauffage : Conseil Energie Thermique, BET Structures : Bresse Plans Structure, Photographe : Raphaël Knecht Coût des travaux : 1 920 000.00 € HT, Surface : 730,00 m2

Entreprises : LOT N° 1 – TERRASSEMENT / VRD : Entreprise FAMY, LOT N° 2 – GROS ŒUVRE : Entreprise FRENOT-RAMBOZ, LOT N° 3 – CHARP / COUV BAC / BARD : Entreprise CZC, LOT N° 4 – MENUISERIE EXT. ALU. : Entreprise PEGUILLET, LOT N° 5 – MENUISERIE INT. BOIS : Entreprise PAGET, LOT N° 6 – PLATRERIE / PEINTURES : Entreprise SDP, LOT N° 7 – PROJECTION ACOUSTIQUE : Entreprise PLAFOND LAFFOND, LOT N° 8 – REV SOLS DURS / CHAPE : Entreprise GRIDELLO, LOT N° 9 – REV SOLS SOUPLES : Entreprise PERRIN MAZIER, LOT N° 10 – PLOMBERIE / CHAUF / VENT : Entreprise ANVOLIA 21, LOT N° 11 –ELECTRICITE : Entreprise EJE