Efficience Architectures


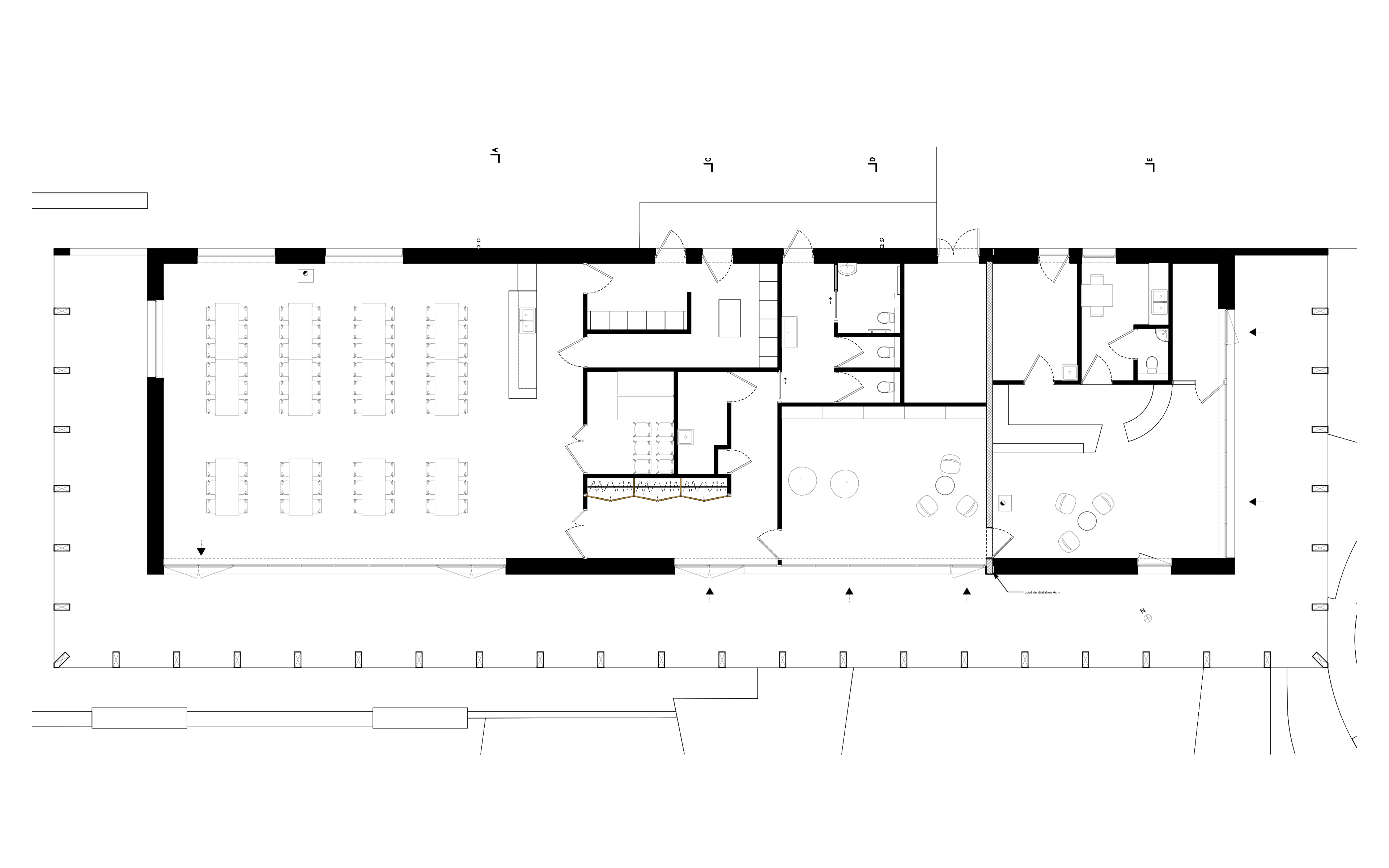
Construction d’une salle polyvalente et d’un office du tourisme à La Pesse


Maître d’ouvrage: Commune de La Pessse, Architecte mandataire: Mickaël Deseille, Economie de la construction: Broissiat-Dequecker, Bet électrique: FERMI, BET chauffage: Conseil Energie Thermique, BET Structures : CVF, Paysagiste: Tant Qu’il y Aura des Rues en Herbe Coût des travaux: 1 050 000.00 € HT, Surface: 350,00 m2