Efficience Architectures


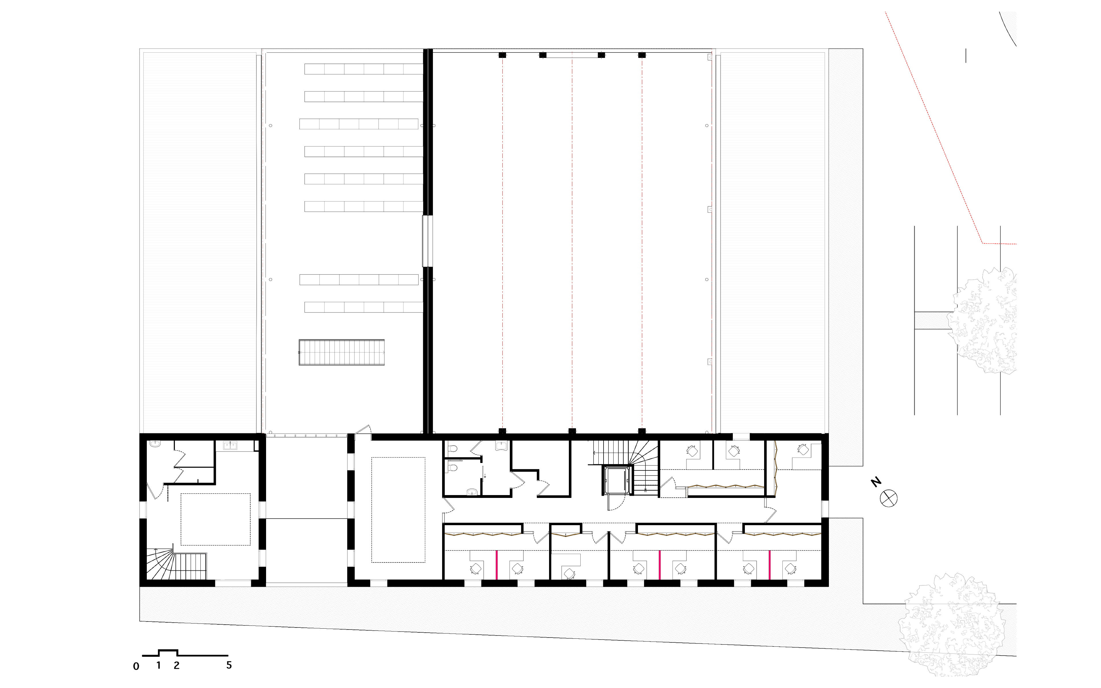
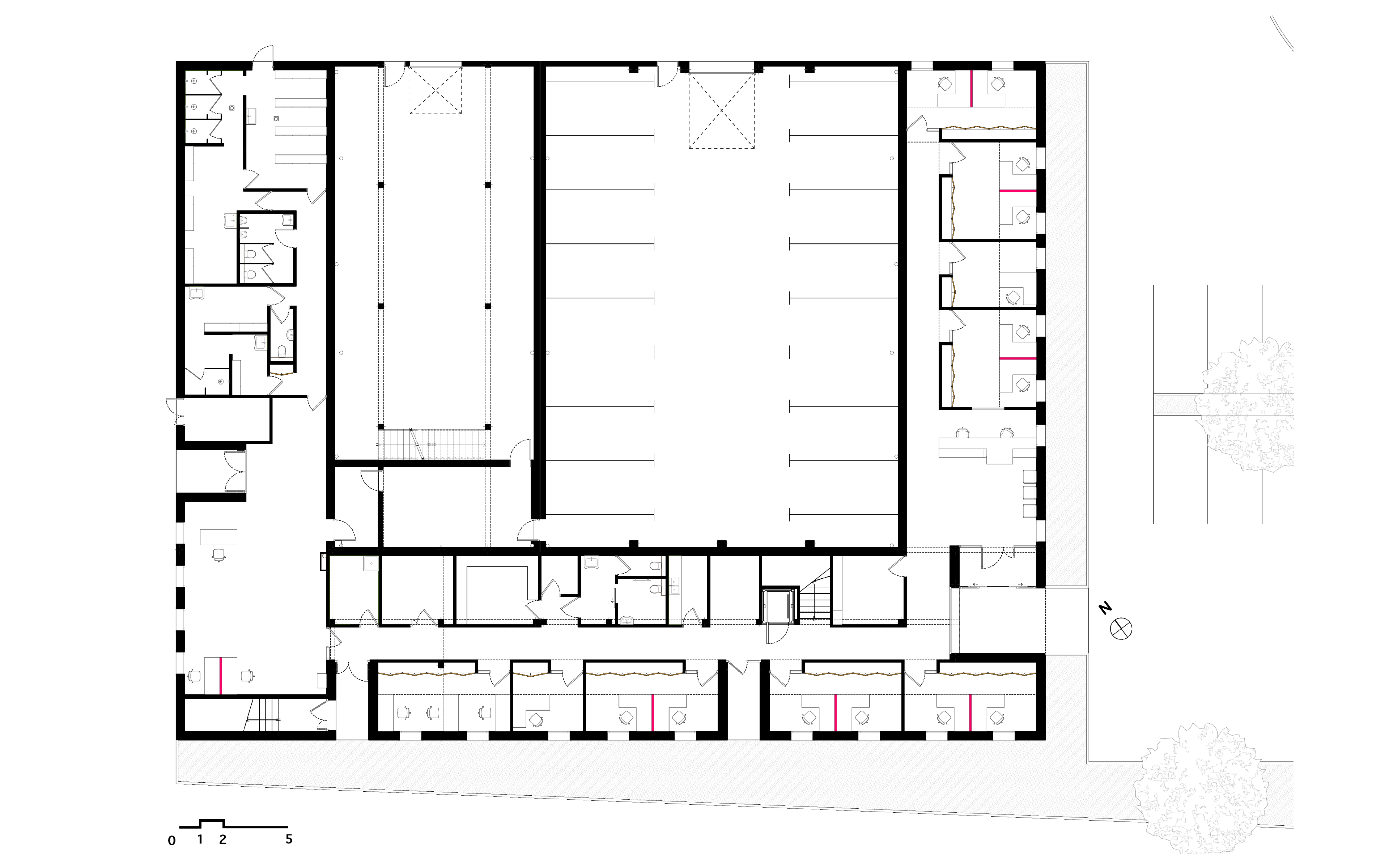
Construction de la maison de l’eau à Oyonnax


Maître d’ouvrage : Haut Buget Agglomération, Bet électrique : FERMI, BET chauffage : Conseil Energie Thermique, BET Structures : Bresse Plans Structure, Economie de la construction : Broissiat-Dequecker, Coût des travaux : 2 533 566.00 € HT, Surface :?150,00 m2, Photographe: Nicolas Waltefaugle

Entreprises : Lot 1 Terrassement VRD : JURA SUD TERRASSEMENT PAYSAGE, Lot 3 Gros œuvre : JACQUET, Lot 4 Charpente bois Couverture bac acier Zinguerie : GIROD MORETTI, Lot 5 Enduit à la chaux : SAS FERNANDEZ DORREGO, lot 6 Etanchéité : ATTILA, Lot 7 Menuiseries extérieures aluminium Métallerie : PAGET MENUISERIE, Lot 8 Menuiseries intérieures – Doublage : PAGET MENUISERIE, Lot 9 Doublages Cloisons Peintures : ARDITO JACQUET, Lot 10 Chapes Revêtements sols scellés Faïences : AIN CARRELAGES, Lot 11 Revêtements de sols collé : PEROTTO SAS, Lot 12 Plomberie : BAL, Lot 13 Elévateur : SAS ERMHES, Lot 14 Electricité : EIFFAGE ENERGIE SYSTEMES, 15 Chauffage ventilation : DETOUILLON